ISZTRIA, LABIN – Ház úszómedencével
ISZTRIA, LABIN - Ház úszómedencével Isztria délkeleti partján, a zöld dombok és a tenger találkozásának helyén, ahol a természet és az örökség találkozik, két hasonló méretű, de eltérő, de egymást kiegészítő karakterű város található - Labin és Rabac. Labin festői városa egy 320 m magas dombon emelkedik, mindössze öt kilométerre Rabac fehér kavicsos strandjaitól. A vidéket meghatározó gazdag történelemmel és bányászattal összefonódó Labin, amelyet rövid időre független köztársasággá nyilvánítottak, ma az ellentmondások lenyűgöző városa; régi és új, történelem és jelen, turizmus és művészet. Labin város környékén medencés ház eladó.
Az ingatlan részletei
Leírás:
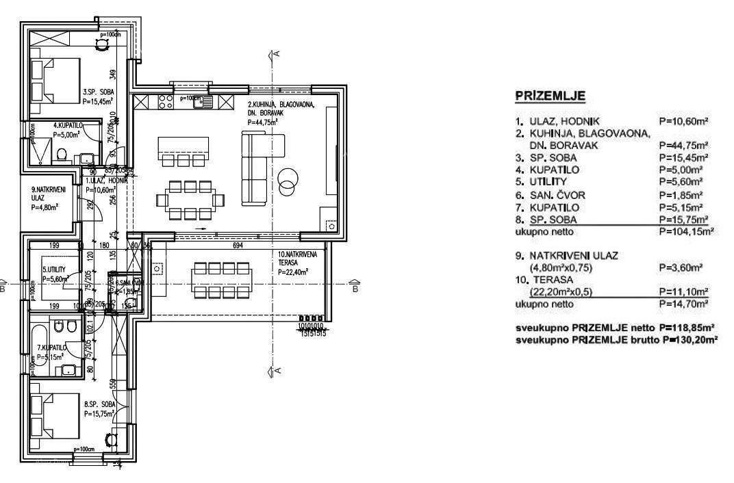
ISZTRIA, LABIN - Ház úszómedencével Isztria délkeleti partján, a zöld dombok és a tenger találkozásának helyén, ahol a természet és az örökség találkozik, két hasonló méretű, de eltérő, de egymást kiegészítő karakterű város található - Labin és Rabac. Labin festői városa egy 320 m magas dombon emelkedik, mindössze öt kilométerre Rabac fehér kavicsos strandjaitól. A vidéket meghatározó gazdag történelemmel és bányászattal összefonódó Labin, amelyet rövid időre független köztársasággá nyilvánítottak, ma az ellentmondások lenyűgöző városa; régi és új, történelem és jelen, turizmus és művészet. Labin város környékén medencés ház eladó. Az ingatlan a modern építészet és a természeti környezet fúzióját képviseli, az építés minősége pedig garantálja a hosszú távú elégedettséget és a lakhatás minőségét. A ház egy lakóegységként van kialakítva, amely egy emeleten keresztül húzódik, világosan meghatározott alaprajzzal, amely lakó- és hálórészekre van osztva. A nappali egy konyhából, egy étkezőből és egy nappaliból áll, ahonnan egy fedett terasz nyílik nyári konyhával, míg az éjszakai rész két hálószobából áll, saját fürdőszobával. Az alaprajzot előszoba, vendég wc és tároló egészíti ki. A feltüntetett ár a lakóépület magas színvonalú kivitelezésére vonatkozik, mely magában foglalja az előkészítő munkákat, a földkiemelést és az alapozást, a külső és válaszfalak építését, a tető- és lemezmunkákat és a külső asztalos, homlokzati és szerelési munkákat. A beltéri befejező munkákat az ár nem tartalmazza. Bútor nélküli, parkosított kertes ingatlan vételi lehetőség az építés utolsó szakaszában árkorrekcióval. Az ingatlan kiváló elhelyezkedése, belső és külső térrendezése lehetőséget ad egy kényelmes családi életre, vagy egy turisztikai bérbeadási vállalkozásba történő befektetésre. Az ügynöki jutalék az Általános Üzleti Feltételek szerint kerül felszámításra:Ingatlan adatok
Térkép
Ha ez az ingatlan (vagy bármelyik másik ajánlatunk) felkeltette az érdeklődését, kérem, vegye fel velem a kapcsolatot!
