ISZTRIA, POREČ 2 hálószobás + fürdőszobás apartman kerttel egy új projektben, nagyszerű helyen!
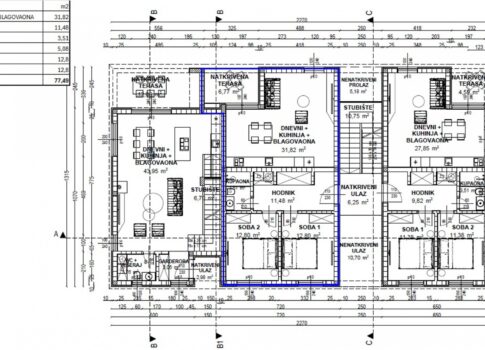
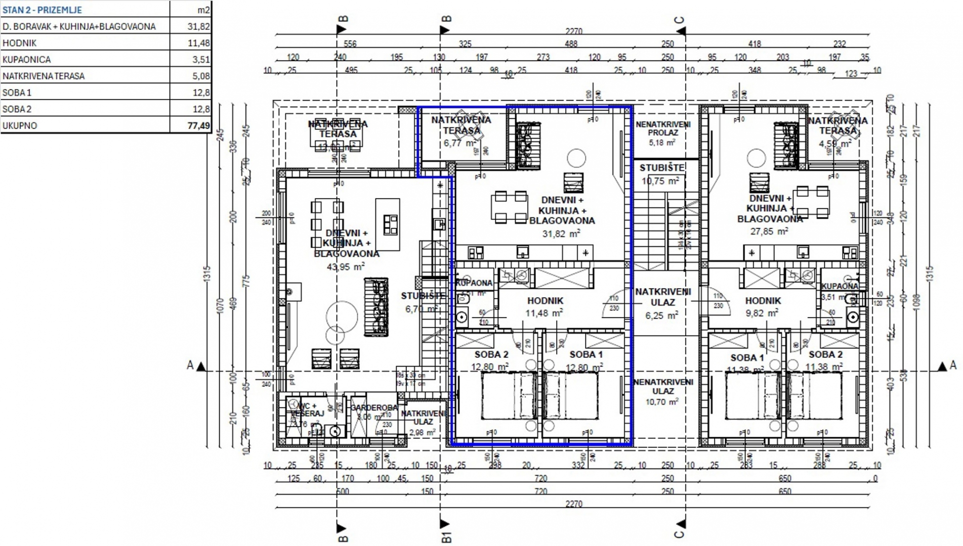
ISTRIA, POREČ – 2 hálószobás + nappalis apartman kerttel egy új projektben, nagyszerű helyen! A DUX ingatlan kínálatában egy apartmant kínálunk egy új projektben, nagyszerű helyen, Poreč városában, iskolák, üzletek, strandok és minden egyéb szolgáltatás közelében. A projekt egy csendes utcában található, családi házakkal körülvéve, Poreč város zöldövezetének közvetlen közelében. A lakás 77,49 m2 lakóteret és 40 m2-es kertet kínál.
Az ingatlan részletei
Leírás:
ISTRIA, POREČ – 2 hálószobás + nappalis apartman kerttel egy új projektben, nagyszerű helyen!
A DUX ingatlan kínálatában egy apartmant kínálunk egy új projektben, nagyszerű helyen, Poreč városában, iskolák, üzletek, strandok és minden egyéb szolgáltatás közelében. A projekt egy csendes utcában található, családi házakkal körülvéve, Poreč város zöldövezetének közvetlen közelében. A lakás 77,49 m2 lakóteret és 40 m2-es kertet kínál. A lakáshoz két parkolóhely és egy 5 m2-es tároló is tartozik. A munkálatok kezdete 2025. szeptember, várható befejezése 2026. december. MŰSZAKI JELLEMZŐK: 1. padlófűtés hőszivattyúval az egész lakásban 2. elektromos redőnyök szúnyoghálóval 3. 3 légkondicionáló 4. előkészítés elektromos autó töltőhöz A lakás egy előszobából, két hálószobából, fürdőszobából, nappaliból konyhával és étkezővel áll egy nyitott térben, ahonnan fedett teraszra és kertre lehet kijutni. Az eladó jogi személy, ezért a vevő mentesül az ingatlanadó megfizetése alól.
Tisztelt ügyfeleink, a közvetítői jutalék felszámítása az Általános Szerződési Feltételeknek megfelelően történik:
Ingatlan adatok
Térkép
Ha ez az ingatlan (vagy bármelyik másik ajánlatunk) felkeltette az érdeklődését, kérem, vegye fel velem a kapcsolatot!

Ingatlanok a környéken
Kiemelt