ISZTRIA, ROVINJ – Egy luxus oázis a tengerparton!
ISZTRIA, ROVINJ – Luxus oázis a tengerparton! A DUX Real Estate egy lenyűgöző apartmant kínál Rovinj városának egyik legkeresettebb részén. Egy gyönyörű és tágas apartman egy kisebb épületben, mindössze 500 méterre a strandtól! Ez a luxus oázis apartman 118,92 m2-es, és koncepciójában egy 3 hálószobás + nappali típusú apartman.
Az ingatlan részletei
Leírás:
ISZTRIA, ROVINJ – Luxus oázis a tengerparton!
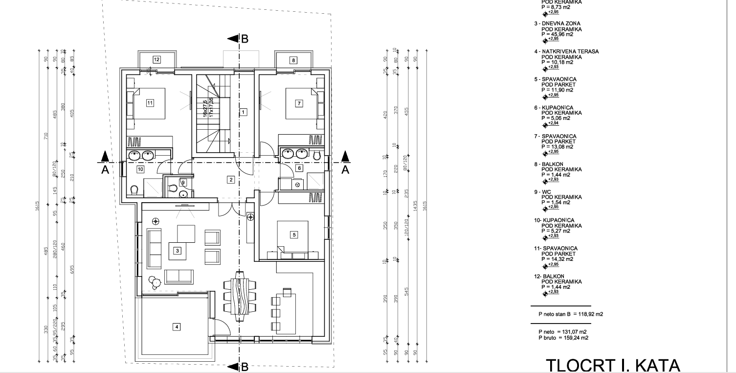
A DUX Real Estate egy lenyűgöző apartmant kínál Rovinj városának egyik legkeresettebb részén. Egy gyönyörű és tágas apartman egy kisebb épületben, mindössze 500 méterre a strandtól! Ez a luxus oázis apartman 118,92 m2-es, és koncepciójában egy 3 hálószobás + nappali típusú apartman. Egy előszobából áll, amely egy nagyon nyitott nappalit és egy nagy, teljesen felszerelt konyhát köt össze, nagy étkezővel. A fent említett helyiségből egy fedett teraszra lehet kijutni. Az apartman második részében három hálószoba található, amelyek közül kettőhöz saját fürdőszoba tartozik. A folyosón található egy vendég WC is. Az apartmanhoz egy 15 m2-es kis kert is tartozik pergolával. A berendezés és a minőségi kivitelezés A energiaosztályú tanúsítványt eredményezett. A mikroklíma rendkívül csendes, és maga az ingatlan egy zsákutcában található, így a forgalom minimális. MŰSZAKI JELLEMZŐK: – Mitsubishi klíma minden szobában – Elektromos padlófűtés minden szobában – Okoszár arcfelismeréssel, ujjlenyomat-olvasóval, kóddal és telefonos ajtónyitási lehetőséggel – Alumínium nyílászárók tripla üvegezéssel – Teljesen felszerelt konyha Bosch gépekkel – Szigetelés: 25 cm-es tégla + 10, 13 és 15 cm-es polisztirol Az eladás mellett hosszú távú bérlésre is van lehetőség, ha szeretné átérezni a teret és az élményt ebben a gyönyörű környezetben! Megtekintésért és egyéb információkért kérjük, forduljon hozzám bizalommal.
Kedves ügyfeleink, a közvetítői jutalékot az Általános Szerződési Feltételek szerint számítjuk fel:
Ingatlan adatok
Térkép
Ha ez az ingatlan (vagy bármelyik másik ajánlatunk) felkeltette az érdeklődését, kérem, vegye fel velem a kapcsolatot!

