KRK SZIGET, MALINSKA – Modern ház medencével és kilátással a tengerre
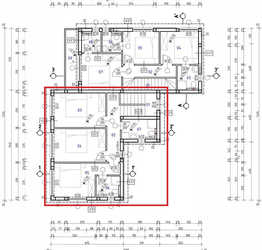
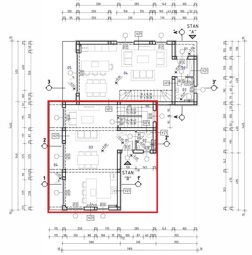
KRK SZIGET, MALINSKA - Modern ház medencével és kilátással a tengerre Ez a modern, új épület a Krk-szigeti Malinskában tökéletes azok számára, akik egy csendes helyet keresnek, kilátással a tengerre és minden kényelmi közelséghez. A 115,78 m2-es lakóterületű ikerház két emeleten terül el és ideális családok számára, akik egy teljesen funkcionális teret szeretnének élvezni. A földszinten bejárati veranda és előszoba, konyhával és étkezővel egybenyitott tágas nappali, wc, valamint úszómedencés, napozórésszel ellátott, parkosított kertbe vezető terasz található. Belső lépcső vezet az emeletre, ahol három hálószoba, két fürdőszoba, előszoba és egy tengerre néző terasz található.
Az ingatlan részletei
Leírás:
KRK SZIGET, MALINSKA - Modern ház medencével és kilátással a tengerre Ez a modern, új épület a Krk-szigeti Malinskában tökéletes azok számára, akik egy csendes helyet keresnek, kilátással a tengerre és minden kényelmi közelséghez. A 115,78 m2-es lakóterületű ikerház két emeleten terül el és ideális családok számára, akik egy teljesen funkcionális teret szeretnének élvezni. A földszinten bejárati veranda és előszoba, konyhával és étkezővel egybenyitott tágas nappali, wc, valamint úszómedencés, napozórésszel ellátott, parkosított kertbe vezető terasz található. Belső lépcső vezet az emeletre, ahol három hálószoba, két fürdőszoba, előszoba és egy tengerre néző terasz található. A házhoz saját udvarban két parkolóhely tartozik. Ezt az ingatlant csúcsminőségű felépítés és felszereltség jellemzi, beleértve a Wi-Fi vezérlésű padlófűtést, minden szobában légkondicionálást, valamint kiváló minőségű kerámiákat és szanitereket. A tengertől és a központtól való távolság mindössze 600 méter, így minden kényelmi szolgáltatás elérhető. Mivel az építkezés 2025 decemberére készül el, ez ideális lehetőség azoknak a családoknak, akik békés környezetet, luxus felszereltséget és Krk sziget természeti szépségének közelségét keresik. Ne hagyja ki a lehetőséget! Lépjen kapcsolatba velünk még ma, és biztosítsa paradicsomát Krk szigetén. *** Tisztelt Ügyfeleink! Ügynöki jutalék az Általános Szerződési Feltételek szerint kerül felszámításra.Ingatlan adatok
Térkép
Ha ez az ingatlan (vagy bármelyik másik ajánlatunk) felkeltette az érdeklődését, kérem, vegye fel velem a kapcsolatot!

