KRK SZIGET – Nyers épület medencével és kilátással a tengerre
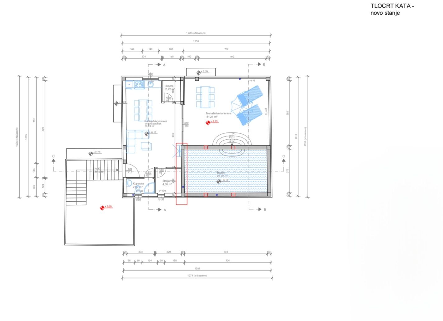
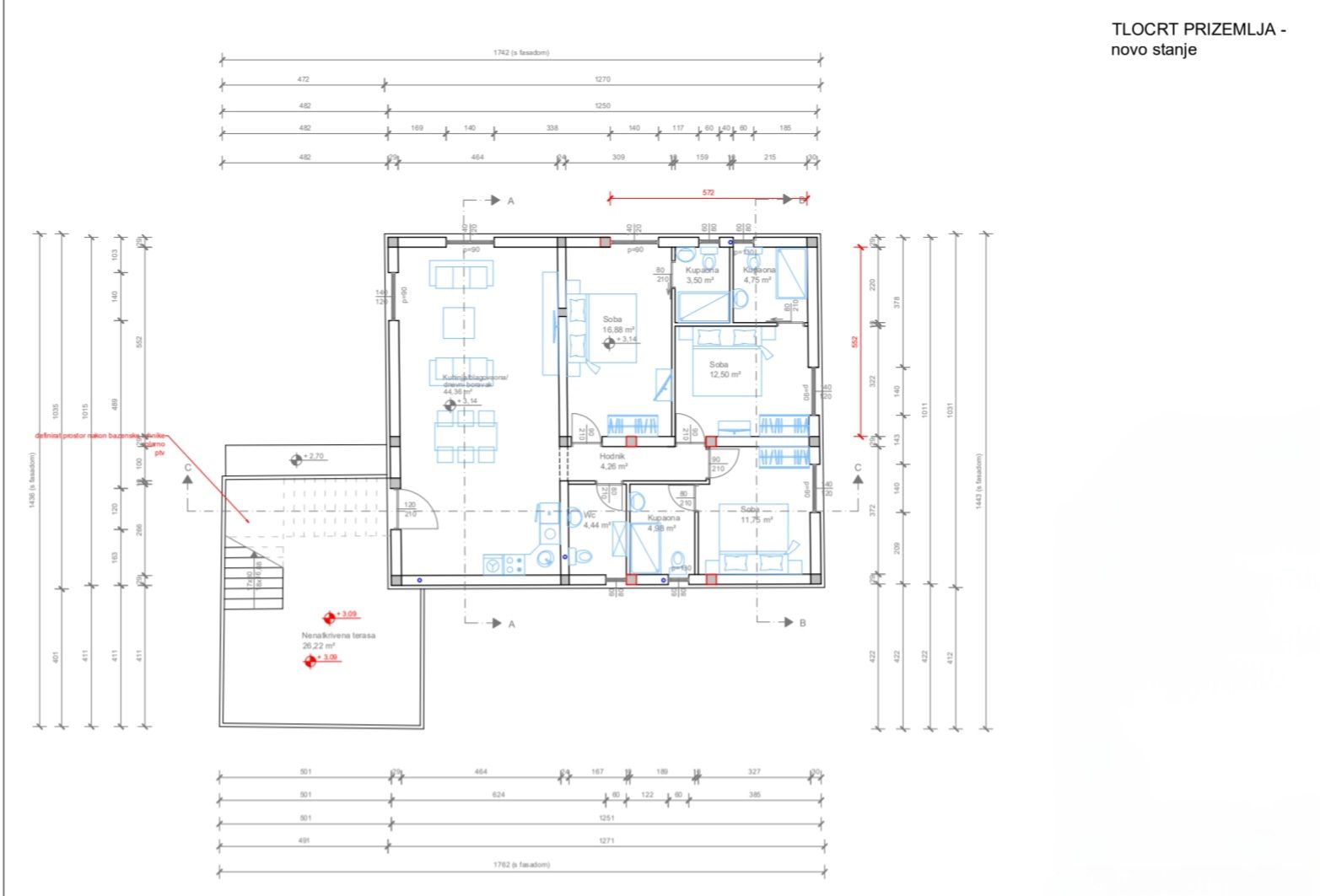
KRK SZIGET – Nyers épület medencével és kilátással a tengerre Horvátország legnagyobb szigetén, amely gyönyörű strandjairól, tiszta tengeréről, gazdag történelméről és kultúrájáról ismert, kivételes ingatlant kínálunk. A ház három emeletből áll. A szinte kész alagsorban három hálószoba, egy nappali, egy tágas konyha, két fürdőszoba és egy wc található. A földszinten nappali, étkező és amerikai konyha, négy hálószoba, három fürdőszoba és egy WC található.
Az ingatlan részletei
Leírás:
KRK SZIGET – Nyers épület medencével és kilátással a tengerre
Horvátország legnagyobb szigetén, amely gyönyörű strandjairól, tiszta tengeréről, gazdag történelméről és kultúrájáról ismert, kivételes ingatlant kínálunk. A ház három emeletből áll. A szinte kész alagsorban három hálószoba, egy nappali, egy tágas konyha, két fürdőszoba és egy wc található. A földszinten nappali, étkező és amerikai konyha, négy hálószoba, három fürdőszoba és egy WC található. Az emeleten nappali étkezővel és konyhával, szauna, fürdőszoba, fedett terasz és medence található. A ház mindössze 1,8 kilométerre található a tengertől és a strandoktól, ami egy ötperces autóútnak felel meg. Kedves potenciális vásárlóink! Örülünk, hogy érdeklődést mutat a kínálatunkban szereplő ingatlanok iránt. Bővebb információért vagy az ingatlan megtekintésének megszervezéséhez forduljon hozzánk bizalommal. Ingatlan megtekintése csak ingatlanközvetítői szerződés aláírásával lehetséges, az ingatlantulajdonos védelme érdekében az adatvédelmi törvény és az ingatlanközvetítői törvény értelmében.
Az ügynöki jutalék az Általános Szerződési Feltételek szerint kerül felszámításra, amely honlapunkon érhető el:
Ingatlan adatok
Térkép
Ha ez az ingatlan (vagy bármelyik másik ajánlatunk) felkeltette az érdeklődését, kérem, vegye fel velem a kapcsolatot!

