OPATIJA, KÖZPONT – LEHETŐSÉG – exkluzív apartman egy új épületben tengerre néző kilátással, közös medencével, garázzsal
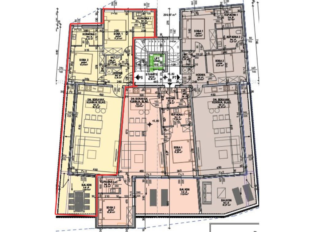
OPATIJA, KÖZPONT – LEHETŐSÉG – exkluzív apartman egy új épületben tengerre néző kilátással, közös medencével, garázzsal Eladó egy gyönyörű, modern P5-ös lakás Opatija központja felett, panorámás tengerre néző kilátással, terasszal, úszómedencével, lifttel és két parkolóhellyel a garázsban. Ez a modern és exkluzív ingatlan déli tájolásával tűnik ki gyönyörű kilátással, csúszó üvegfalakkal, amelyek akadálytalan kilátást és rengeteg fényt biztosítanak egész évben. Az apartman két hálószobából, két fürdőszobából és egy WC-ből áll, valamint egy gyönyörű nyitott terű nappali kapcsolódik az étkezőhöz és a konyhához, valamint a teljes térből ki lehet jutni a teraszra, ahol gyönyörű kilátás nyílik a kék tengerre. Kiemeljük: – fantasztikus SCHUCO alumínium asztalosárut – első osztályú parketta – elektromosan működtethető redőnyöket – kiváló minőségű szanitereket – olasz kerámiát – biztonsági bejárati ajtót – liftet – közös úszómedencét – energiatakarékos kivitelezést és szigetelést.
Az ingatlan részletei
Leírás:
OPATIJA, KÖZPONT – LEHETŐSÉG – exkluzív apartman egy új épületben tengerre néző kilátással, közös medencével, garázzsal
Eladó egy gyönyörű, modern P5-ös lakás Opatija központja felett, panorámás tengerre néző kilátással, terasszal, úszómedencével, lifttel és két parkolóhellyel a garázsban. Ez a modern és exkluzív ingatlan déli tájolásával tűnik ki gyönyörű kilátással, csúszó üvegfalakkal, amelyek akadálytalan kilátást és rengeteg fényt biztosítanak egész évben. Az apartman két hálószobából, két fürdőszobából és egy WC-ből áll, valamint egy gyönyörű nyitott terű nappali kapcsolódik az étkezőhöz és a konyhához, valamint a teljes térből ki lehet jutni a teraszra, ahol gyönyörű kilátás nyílik a kék tengerre. Kiemeljük: – fantasztikus SCHUCO alumínium asztalosárut – első osztályú parketta – elektromosan működtethető redőnyöket – kiváló minőségű szanitereket – olasz kerámiát – biztonsági bejárati ajtót – liftet – közös úszómedencét – energiatakarékos kivitelezést és szigetelést. Az apartman elhelyezkedése fantasztikus: egy békés és csendes utca Abbázia központja felett, közel a strandhoz és a Lungomare sétányhoz. A strand gyalogosan mindössze 8 perc alatt elérhető, autóval pedig mindössze egy percet vesz igénybe. Fontos kiemelni, hogy az épületet erdős növényzet veszi körül. Ez a tökéletes lehetőség egy fantasztikus ingatlan megvásárlására az Adria egyik legszebb városában. Ideális lakhatásnak, turisztikai bérbeadásnak vagy befektetésnek is.
Ügynöki jutalék az Általános Szerződési Feltételek szerint kerül felszámításra.
Ingatlan adatok
Térkép
Ha ez az ingatlan (vagy bármelyik másik ajánlatunk) felkeltette az érdeklődését, kérem, vegye fel velem a kapcsolatot!

