CRES SZIGET, CRES – Modern apartman saját kerttel
Cres •
ID: 4108-572172
CRES SZIGET, CRES - Modern apartman saját kerttel LEHETŐSÉG A CRES-en!! Egy modern, mindössze 3 lakóegységből álló új épület épül. A zöldövezet szélén található, és gyönyörű panorámás kilátás nyílik a tengerre és a Cres-öbölre. Az új épületben garázshelyek lesznek, ami ritkaság a környéken!
Az ingatlan ára: €385 000
Az ingatlan részletei
Extrák
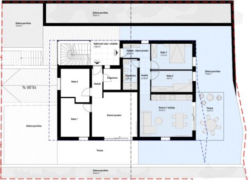
Leírás:
CRES SZIGET, CRES - Modern apartman saját kerttel LEHETŐSÉG A CRES-en!! Egy modern, mindössze 3 lakóegységből álló új épület épül. A zöldövezet szélén található, és gyönyörű panorámás kilátás nyílik a tengerre és a Cres-öbölre. Az új épületben garázshelyek lesznek, ami ritkaság a környéken! A ház három szinten terül el: egy földbe ásott garázs tároló helyiségekkel, a földszinten két kisebb lakás található, a felső szinten pedig egy panorámás penthouse. A földszinti 2-es apartman 58,71 m2-es nappalival, előszobából, előszobából, két hálószobából, fürdőszobából és nappaliból konyhával, étkezővel és pihenősarokkal rendelkezik. A nappaliból lehet kijutni a kültéri területre, ahol egy burkolt terasz és egy 74 m2-es gyönyörű zöld kert található. A garázsban a lakáshoz 2 parkolóhely és egy 10,67 m2-es tároló tartozik. A munkálatok tervezett befejezése 2026 tavasza. Készüljön fel arra, hogy a nyarat egy modern, új épületben köszöntse Cres városában! *** Kedves Ügyfeleink, az ügynöki jutalék az Általános Szerződési Feltételek szerint kerül felszámításra:Ingatlan adatok
Térkép
Ha ez az ingatlan (vagy bármelyik másik ajánlatunk) felkeltette az érdeklődését, kérem, vegye fel velem a kapcsolatot!
Horváth
Lajos

