ISZTRIA, CEROVLJE – Régi kőépület felújítása megkezdődött
Cerovlje •
ID: 4108-598878
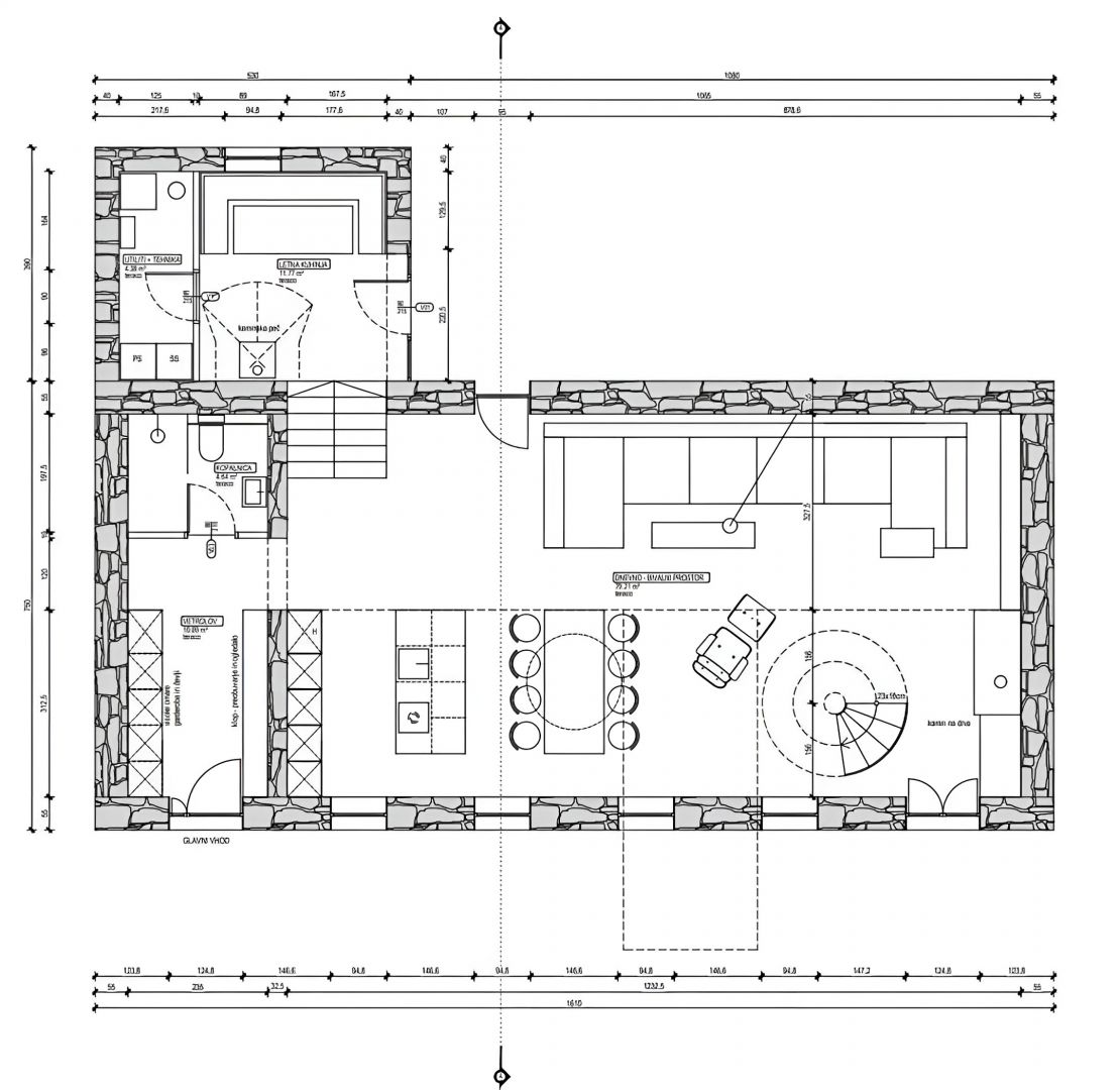
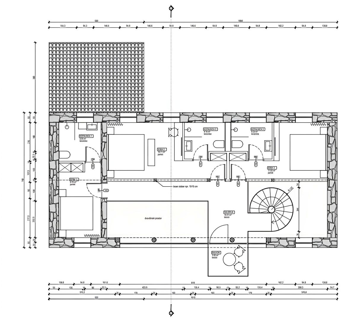
ISZTRIA, CEROVLJE - Felújítás alatt álló kőház Cerovlje az azonos nevű hatalmas község központi települése, amely Pazintól északkeletre, a dombos tájon húzódik, és számos tanyát, valamint több nagyobb vidéki települést foglal magában. 278 méterrel a tengerszint felett fekszik, és 4,99 km² területet foglal magában. Ez a község ad otthont Isztria leghosszabb barlangjának, egy legmagasabban fekvő olajfaligetnek és két várnak, a Pazinčica folyó folyik át rajta, a folyó völgyében pedig vasút, majd út, végül autópálya fut. Ebben a mesés kilátású tájban eladó egy felújítás alatt álló kőház.
Az ingatlan ára: €250 000
Az ingatlan részletei
Leírás:
ISZTRIA, CEROVLJE - Felújítás alatt álló kőház Cerovlje az azonos nevű hatalmas község központi települése, amely Pazintól északkeletre, a dombos tájon húzódik, és számos tanyát, valamint több nagyobb vidéki települést foglal magában. 278 méterrel a tengerszint felett fekszik, és 4,99 km² területet foglal magában. Ez a község ad otthont Isztria leghosszabb barlangjának, egy legmagasabban fekvő olajfaligetnek és két várnak, a Pazinčica folyó folyik át rajta, a folyó völgyében pedig vasút, majd út, végül autópálya fut. Ebben a mesés kilátású tájban eladó egy felújítás alatt álló kőház. A ház békében, csendben és a természet varázsában fekszik, egy festői kőfalu szélén, amely nyugalmat és hagyományt áraszt, és ahonnan panorámás kilátás nyílik a festői bársonyos dombokra. A lenyűgöző osztrák-magyar kori antik épület két emeleten terül el, és felújításra szorul, a felújítás pedig egy reprezentatív, nagy potenciállal rendelkező ingatlant eredményezhet, ezért kidolgoztak egy projektet, és megszerezték az újjáépítéshez szükséges építési engedélyt. A projekt a hagyományos és a modern tökéletes ötvözeteként fogant meg, amely formáját és színvilágát tekintve illeszkedik a településhez és a tájhoz. Az átalakítás megkezdődött; a tető és a beton padlóközi szerkezetek beépítésre kerültek, a feltüntetett ár pedig a megadott állapotra vonatkozik. A buja zöld növényzet és az építészet kombinációja ideálissá teszi ezt az ingatlant a kőből készült régiségek és a természet szerelmeseinek, nagyszerű lehetőségekkel a nyugodt családi életre vagy jövedelmező bérbeadási vállalkozásra. Kedves ügyfeleink, a közvetítői jutalék felszámítása az Általános Szerződési Feltételeknek megfelelően történik:Ingatlan adatok
Térkép
Ha ez az ingatlan (vagy bármelyik másik ajánlatunk) felkeltette az érdeklődését, kérem, vegye fel velem a kapcsolatot!
Horváth
Lajos

