ISZTRIA, PÚLA – Modern luxusvilla medencével Štinjanban!
ISTRIA, PULA – Modern luxusvilla medencével Štinjanban! A DUX Real Estate egy kiváló modern villát kínál medencével, csendes helyen, mindössze 1 km-re a tengertől! Ez az elegáns új épület egy 850 m²-es parkosított telken található, és a kortárs design, a funkcionális elrendezés és a luxus hangulat tökéletes kombinációját kínálja. A ház két szinten terül el: *Földszint (91,56 m²) tartalmazza: – tágas nappali, amely a konyhával és étkezővel van összekötve – egy hálószoba saját fürdőszobával – ideális vendégek számára vagy kényelmes tartózkodásra *Első emelet (87,84 m²) tartalmazza: – három kényelmes hálószoba, – minden szobához saját fürdőszoba tartozik, amely maximális magánéletet és kényelmet biztosít A kültéri területen egy 40 m²-es végtelenített medence található, amely tökéletes a meleg napokon való kikapcsolódáshoz.
Az ingatlan részletei
Leírás:
ISTRIA, PULA – Modern luxusvilla medencével Štinjanban!
A DUX Real Estate egy kiváló modern villát kínál medencével, csendes helyen, mindössze 1 km-re a tengertől!
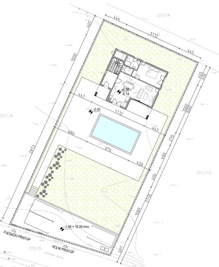
Ez az elegáns új épület egy 850 m²-es parkosított telken található, és a kortárs design, a funkcionális elrendezés és a luxus hangulat tökéletes kombinációját kínálja.
A ház két szinten terül el:
*Földszint (91,56 m²) tartalmazza:
– tágas nappali, amely a konyhával és étkezővel van összekötve
– egy hálószoba saját fürdőszobával
– ideális vendégek számára vagy kényelmes tartózkodásra
*Első emelet (87,84 m²) tartalmazza:
– három kényelmes hálószoba,
– minden szobához saját fürdőszoba tartozik, amely maximális magánéletet és kényelmet biztosít
A kültéri területen egy 40 m²-es végtelenített medence található, amely tökéletes a meleg napokon való kikapcsolódáshoz. Az ingatlanhoz aszfaltúton lehet eljutni, járdával és közvilágítással.
A helyszín rendkívül vonzó:
– 4 km-re Pula központjától
– 6 km-re a Brijuni Nemzeti Parktól
– 5 km-re a Pula repülőtértől
– 35 km-re Rovinjtól A ház déli fekvésű, ami rengeteg természetes fényt és kilátást biztosít a tengerre.
A közvetlen közelben modern villák találhatók úszómedencével, ami tovább erősíti a helyszín minőségét. Jelenleg a belső munkálatok zajlanak. Padlófűtés van beépítve, a falak alapozva vannak, és a kerámiák már le vannak szerelve. A vásárlás már ebben a szakaszban lehetséges, ami ritka lehetőséget kínál a belső tér saját kívánságok szerinti személyre szabására. Lehetőség van egy teljesen kész ingatlan megvásárlására is.
DOKUMENTÁCIÓK: Tulajdonjog rendezett (1/1), tehermentes Építési telek Fizetett közművek
Ár a készültség jelenlegi szakaszában: 690 000 EUR További információért vagy megtekintés egyeztetéséhez kérjük, vegye fel velünk a kapcsolatot.
Kedves ügyfeleink, a közvetítői jutalékot az Általános Szerződési Feltételeknek megfelelően számítjuk fel:
Ingatlan adatok
Térkép
Ha ez az ingatlan (vagy bármelyik másik ajánlatunk) felkeltette az érdeklődését, kérem, vegye fel velem a kapcsolatot!

