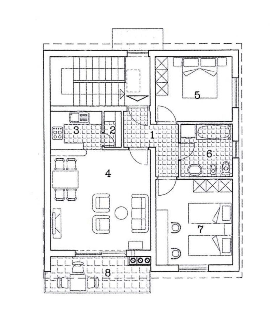
MATULJI, JURDANI, PERMANI – lakás 68m2 + galéria 31m2, 2. emelet 3 hálószoba + nappali
MATULJI, JURDANI, PERMANI – lakás 68m2 + galéria 31m2, 2. emelet 3 hálószoba + nappali A második emeleti lakás előszoba, nappali, étkező, 3 hálószoba, fürdőszoba, tároló helyiség és terasz található. A lakás két szintes, melyet belső lépcső köt össze, a felső rész tulajdonképpen a tetőtérben található, harmadik hálószobaként, illetve potenciális vevő kívánsága szerint használható. A lakás egy ikerházban található, összesen 3 lakással.
Az ingatlan részletei
Leírás:
MATULJI, JURDANI, PERMANI – lakás 68m2 + galéria 31m2, 2. emelet 3 hálószoba + nappali
A második emeleti lakás előszoba, nappali, étkező, 3 hálószoba, fürdőszoba, tároló helyiség és terasz található. A lakás két szintes, melyet belső lépcső köt össze, a felső rész tulajdonképpen a tetőtérben található, harmadik hálószobaként, illetve potenciális vevő kívánsága szerint használható. A lakás egy ikerházban található, összesen 3 lakással. A lakáshoz 2 db szabadtéri parkoló tartozik. Kiváló infrastruktúra 250-1,5 km-es körzetben: ki-/bejárat az elkerülőre, buszpályaudvar, posta, bank, sportcentrum, rendelő, gyógyszertár, étterem, iskola, óvoda, bevásárlóközpont, benzinkút.. Az ár tartalmazza az ÁFA-t, így a leendő vevő az ingatlan megvásárlásakor nem fizet adót. INGATLAN KEDVEZŐ ÁRON!!!
Az ügynökségi jutalék az Általános Szerződési Feltételek szerint kerül felszámításra:
Ingatlan adatok
Térkép
Ha ez az ingatlan (vagy bármelyik másik ajánlatunk) felkeltette az érdeklődését, kérem, vegye fel velem a kapcsolatot!

