NOVALJA, JAKIŠNICA – Luxus apartman a földszinten
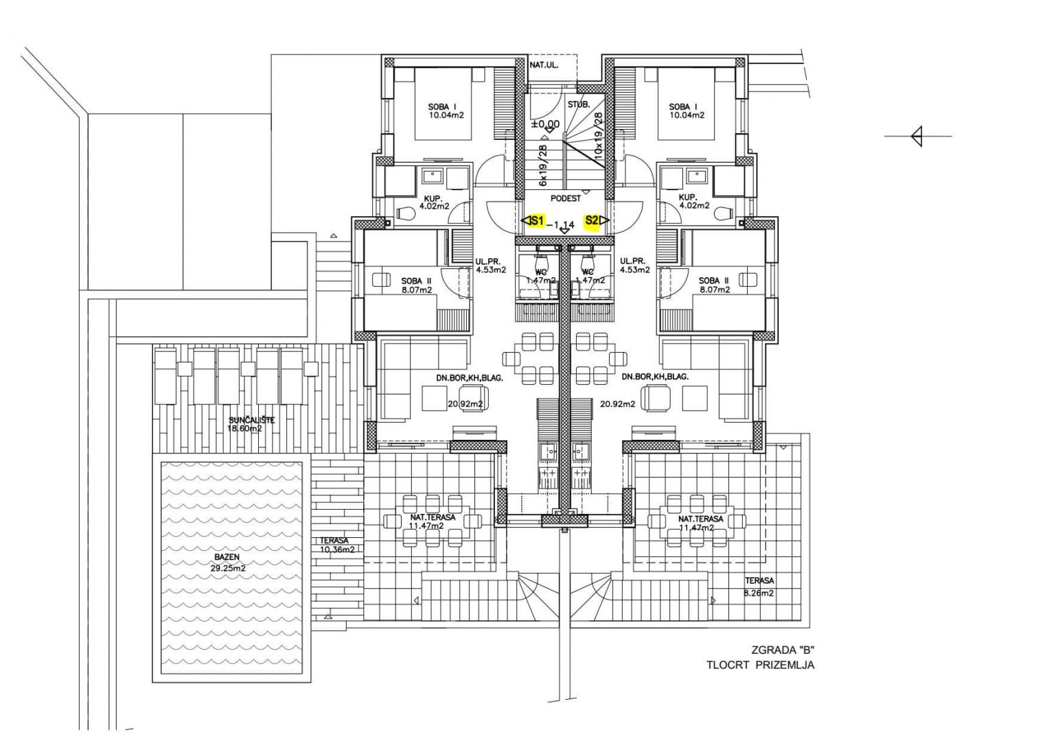
NOVALJA, JAKIŠNICA – Luxus földszinti apartman Egy új, modern, öt apartmanból álló épület földszintjén található egy gyönyörű kétszobás apartman – a kényelem és a magánélet tökéletes kombinációja. Az S2 apartman 93,20 m²-es, két hálószobából, egy tágas nappaliból konyhával, fürdőszobából, egy további WC-ből és egy 8 m²-es fedett teraszból áll. A privát napozóterasz és kert, amely ideális a pihenésre és a szabadban való tartózkodásra, különleges hangulatot teremt. Az apartmanhoz tartozik egy 30 m²-es pince is az alagsorban saját fürdőszobával – tökéletes társasági élethez, vendégek fogadásához vagy hobbi célra.
Az ingatlan részletei
Leírás:
NOVALJA, JAKIŠNICA – Luxus földszinti apartman
Egy új, modern, öt apartmanból álló épület földszintjén található egy gyönyörű kétszobás apartman – a kényelem és a magánélet tökéletes kombinációja. Az S2 apartman 93,20 m²-es, két hálószobából, egy tágas nappaliból konyhával, fürdőszobából, egy további WC-ből és egy 8 m²-es fedett teraszból áll. A privát napozóterasz és kert, amely ideális a pihenésre és a szabadban való tartózkodásra, különleges hangulatot teremt. Az apartmanhoz tartozik egy 30 m²-es pince is az alagsorban saját fürdőszobával – tökéletes társasági élethez, vendégek fogadásához vagy hobbi célra. A fűtést légkondicionáló és padlófűtés biztosítja a konyhában és a fürdőszobában, a szobákban pedig a parketta minden lépésnél melegséget áraszt. Nyugodt környezet, modern design és élettér – minden egy helyen. Teljes bruttó terület 104,11 m2 Kedves leendő vásárlók! Örülünk, hogy érdeklődnek az ajánlatunkban szereplő ingatlanok iránt. További információkért és az ingatlan megtekintésével kapcsolatos megállapodásért kérjük, forduljon hozzánk bizalommal. A lakás 2025. augusztus 15-ig lesz kész és azonnal beköltözhető. Az ingatlan megtekintése csak ingatlanközvetítői szerződés aláírásával lehetséges.
A közvetítői jutalék felszámítása az Általános Szerződési Feltételeknek megfelelően történik.
Ingatlan adatok
Térkép
Ha ez az ingatlan (vagy bármelyik másik ajánlatunk) felkeltette az érdeklődését, kérem, vegye fel velem a kapcsolatot!

