RIJEKA, VIŠKOVO – apartman 2. (57 m2) ÚJ ÉPÜLETBEN 2 HÁLÓSZOBA + NAPPALI, VIŠKOVO VÁROSI ÉPÜLET! LEHETŐSÉG!
RIJEKA, VIŠKOVO – 2. lakás (57 m2) ÚJ ÉPÜLETBEN, 2 HÁLÓSZOBA + NAPPALI, VÁROSI ÉPÜLETBEN, VIŠKOVO-BAN! LEHETŐSÉG! LAKÁSOK ELŐÉRTÉKESÍTÉSE 2025.07.15-IG!
Az ingatlan részletei
Leírás:
RIJEKA, VIŠKOVO – 2. lakás (57 m2) ÚJ ÉPÜLETBEN, 2 HÁLÓSZOBA + NAPPALI, VÁROSI ÉPÜLETBEN, VIŠKOVO-BAN! LEHETŐSÉG!
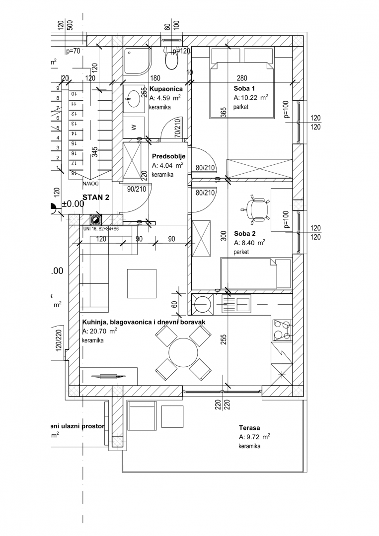
LAKÁSOK ELŐÉRTÉKESÍTÉSE 2025.07.15-IG! 15% KEDVEZMÉNY!!! 2. lakás – földszint Előszoba: 4,04 m2 Konyha, étkező és nappali: 20,70 m2 Terasz: 9,72 m2 · 1. szoba: 10,22 m2 2. szoba: 8,40 m2 Fürdőszoba: 4,59 m2 2. lakás teljes nettó területe: 57,67 m2 Az épület kizárólag lakási célra szolgál. 6 lakást tartalmaz, a hozzájuk tartozó tárolóhelyiségekkel az alagsorban és kültéri parkolóhelyekkel. Az alagsorban 6 lakáshoz 6 tárolóhelyiség található. A földszinten 2 lakás található. Az 1. emeleten 2 lakás található. A 2. emeleten 2 lakás található. KÜLSŐ MEGJELENÉS ÉS KÖRNYEZETALKOTÁS: Az épület egyszerű és funkcionális tömegekkel rendelkezik. A homlokzatok mérsékelten vízszintesen és függőlegesen előretolt alakúak. A homlokzat modern anyagokkal, fehér és szürke árnyalatokban készül. A külső nyílászárók fekete PVC-ből készülnek. Az erkélykorlátok üvegből készülnek. A tető típusa lapostető. Az építési telek beépítetlen részét jármű- és gyalogosövezetként, az épülethez való hozzáférés területévé, gyalogosövezetté és zöldövezetté alakítják. A jármű- és gyalogosövezet, valamint az épülethez való hozzáférés területe aszfaltburkolatot kap. A gyalogosövezet betonelemekkel burkolt, a zöldterületek pedig füvesítettek és kertészetileg rendezettek lesznek alacsony és magas őshonos növényzet telepítésével. ÉPÍTÉS: Az épület szerkezete tömör téglából épült, kivéve az alagsori falakat, amelyek vasbetonból készültek. A tömör téglafalakat függőleges és vízszintes vasbeton gyűrűk vázolják. A padlóközi szerkezetek tömör vasbeton födémek. A lépcsőszárnyak és pihenők tömör vasbeton födémek. Az oszlopok, gerendák és áthidalók vasbetonból készültek. Az alapok és az alapfalak vasbetonból készültek. A tetőszerkezet tömör vasbeton födémekből áll. TELEPÍTÉSEK: Az épületben helyet kapnak a vízellátás és a vízelvezetés, az esővíz-elvezető berendezések, a hőtechnikai berendezések kondenzvíz-elvezető berendezései, erős és gyengeáramú elektromos berendezések (telefon és kaputelefon), valamint a fűtés, hűtés és szellőztetés gépészeti berendezései. MIKRO-ELHELYEZKEDÉS: Viškovo község Rijekától északnyugatra található, és nemcsak a Primorje-Gorski Kotar megyén belül, hanem országos szinten is az egyik legdinamikusabban fejlődő terület. Viškovo község a Škurinje fő csomóponton és az újonnan megnyílt Rujevica csomóponton (Rijeka elkerülő út) keresztül kapcsolódik az állami utakhoz, ami megkönnyíti a közlekedést és a község megközelítését. Összesen 5 megyei és 4 helyi út halad át a községen. Viškovo község a szlovén határ (Rupa határátkelő) közvetlen közelében fekszik, így könnyen és gyorsan megközelíthető a szlovénok és az olaszok számára, részben pedig Abbáziára, mint erős turisztikai központra támaszkodik. Viškovo település a község közigazgatási központja. A főút mentén találhatók az összes fontos intézmény: az önkormányzat, posta, általános iskola, óvodák, könyvtár, alapellátási intézmények, gyógyszertárak, bankok, templom, turisztikai iroda, benzinkutak és számos élelmiszerbolt, valamint különféle szolgáltató tevékenységek. INGATLAN KIVÁLÓ ÉS EGYEDI HELYEN, NAGY POTENCIÁLLAL! Mindenképpen ideális családi életre, de turisztikai befektetésnek is alkalmas. Legyen egy lépéssel előrébb, és használja ki ezt a ritka lehetőséget!
Kedves ügyfeleink, a közvetítői jutalékot az Általános Szerződési Feltételek szerint számítjuk fel:
Ingatlan adatok
Térkép
Ha ez az ingatlan (vagy bármelyik másik ajánlatunk) felkeltette az érdeklődését, kérem, vegye fel velem a kapcsolatot!

