OPATIJA, MOŠĆENIČKA DRAGA – egy 3 apartmanból álló ház első emelete, mindössze 500 méterre a strandtól, kiváló befektetés a felújításhoz
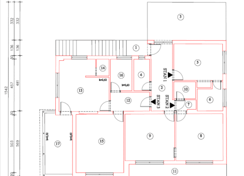
OPATIJA, MOŠĆENIČKA DRAGA – egy 3 apartmanból álló ház első emelete, mindössze 500 méterre a strandtól, kiváló befektetés a felújításhoz Az exkluzív DUX akcióban bemutatjuk az Abbáziai Riviéra legjobb befektetését. Ez egy egész emelet egy 3 apartmanra osztott magánházban, Mošćenička Draga egyik csendes lakóövezetében – Abbázia egyik kedvenc helyén. A ház emelete egy összesen 3 lakásos ház első emeletén található, melyből a szomszédok a földszinten vannak. Az emeleten egy bejárat, egy külön terasz a bejáratnál, egy nagyobb folyosó, amely 3 lakás előcsarnokaként szolgál (lásd az alaprajzot) és a fent említett 3 apartman.
Az ingatlan részletei
Leírás:
OPATIJA, MOŠĆENIČKA DRAGA – egy 3 apartmanból álló ház első emelete, mindössze 500 méterre a strandtól, kiváló befektetés a felújításhoz
Az exkluzív DUX akcióban bemutatjuk az Abbáziai Riviéra legjobb befektetését. Ez egy egész emelet egy 3 apartmanra osztott magánházban, Mošćenička Draga egyik csendes lakóövezetében – Abbázia egyik kedvenc helyén. A ház emelete egy összesen 3 lakásos ház első emeletén található, melyből a szomszédok a földszinten vannak. Az emeleten egy bejárat, egy külön terasz a bejáratnál, egy nagyobb folyosó, amely 3 lakás előcsarnokaként szolgál (lásd az alaprajzot) és a fent említett 3 apartman. Mindhárom lakás tulajdonjogba és társasházba a tényleges állapoton keresztül törvényesített. Azt is jó megjegyezni, hogy minden apartman önmagában is nagyon funkcionális. A két déli apartman (nagyobb) kültéri terasszal rendelkezik, ahonnan gyönyörű kilátás nyílik a tengerre és a zöldre. A fent említett teraszok fedettek. A lakás külön bejáratú, vagy inkább saját lépcsővel rendelkezik a bejárati ajtóhoz. Ami a fűtést illeti, minden helyiségben van előkészület a központi fűtésre, valamint a légkondicionálás. Ez a magánház jó állapotú és teljesen törvényesített, amely biztosítja a homlokzat és a kert egyszerű felújítását. A telek jó állapotú, tulajdonosközi megállapodással van meghatározva, megosztva a tulajdonosok között. A lakáshoz tartozik egy 70m2-es kert + 3 parkolóhely. A ház állapota nagyon jó, de teljes belső felújításra van szükség ahhoz, hogy olyan minőségi teret kapjunk, amit ez a ház megérdemel a tenger közelében. A híres strand séta egyenes úton 4 percet vesz igénybe. Abbázia központja autóval mindössze 15 percet vesz igénybe. Ez a mikrotelepülés kiválóan alkalmas lakhatásra, turisták formájában befektetésre is. Ingatlanlátogatás megszervezéséhez hívjon egy megbízható ügynököt – német nyelvű konzultáció lehetséges.
Az ügynökségi jutalék az Általános Szerződési Feltételek szerint kerül felszámításra:
Ingatlan adatok
Térkép
Ha ez az ingatlan (vagy bármelyik másik ajánlatunk) felkeltette az érdeklődését, kérem, vegye fel velem a kapcsolatot!

